0
Réf : O190011589

Grand appartement avec terrasse pour investir à Sète

Sète (34200)
339 000 €

A propos de ce bien

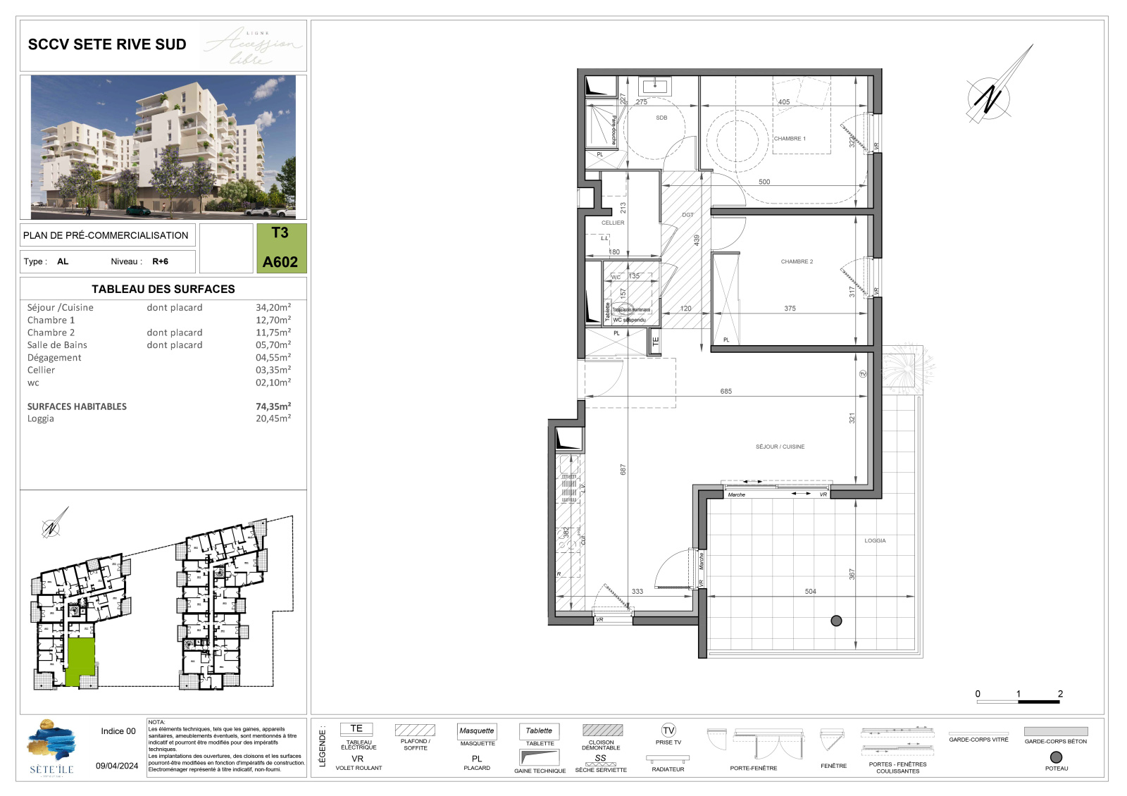
Investissement à réaliser avec cet appartement de belle dimension pour un T3 s'accompagnant d'une terrasse de belle profondeur sur le territoire de Sète. Dans un nouvel immeuble tout neuf dont la livraison est prévue pour 2026 avec accès PMR. Cet appartement est au 6ème niveau dans un bâtiment de 8 étages mais le bâtiment dispose d'un ascenseur. L'intérieur est formé d'un espace nuit comprenant 2 chambres, un espace cuisine, un coin salon de 34.2m² et une salle d'eau. La surface intérieure habitable fait 74.35m² loi Carrez. A reçu le label de bâtiment à basse consommation garantissant des économies d'énergie au quotidien. Des fenêtres à double vitrage garantissent la tranquillité des occupants. À l'extérieur, vous disposerez d'une terrasse. Ce domicile vous fait bénéficier d'au moins un garage. Si vous avez des questions, entrez rapidement en contact avec notre agence. Si vous êtes à la recherche d'un nouveau logement pour votre famille monoparentale, n'hésitez pas à visiter cette habitation.

Descriptif du bien

TRAD_PAMPERO_Caracteristique Valeurs
Code postal 34200
Surface habitable (m²) 74,35 m²
Surface loi Carrez (m²) 74,35 m²
Nombre de chambre(s) 2
Nombre de pièces 3
Etage 6
Nombre de niveaux 1
Ascenseur OUI
TRAD_PAMPERO_Caracteristique Valeurs
Nb de salle d'eau 1
Cuisine Américaine
Mode de chauffage Géothermie
Type de chauffage Air pulsé
Format de chauffage Collectif
Interphone NON
Visiophone OUI
Balcon NON
Loggia NON
Terrasse OUI
Nombre de garage 1
Cave NON
Exposition Sud-Est
Année de construction 2026
TRAD_PAMPERO_Caracteristique Valeurs
Copropriété OUI
nombre de lots 127
TRAD_PAMPERO_Caracteristique Valeurs
Prix de vente 339 000 €
Les honoraires d'agence seront intégralement à la charge du vendeur  
Ce bien vous intéresse ?
Fieldset par défaut
Fieldset par défaut
Validation

* Champs obligatoires

Contacter l'agence
Validation
Les informations recueillies sur ce formulaire sont enregistrées dans un fichier informatisé par La Boite Immo agissant comme Sous-traitant du traitement pour la gestion de la clientèle/prospects de l'Agence / du Réseau qui reste Responsable du Traitement de vos Données personnelles. La base légale du traitement repose sur l'intérêt légitime de l'Agence / du Réseau. Elles sont conservées jusqu'à demande de suppression et sont destinées à l'Agence / au Réseau. Conformément à la loi « informatique et libertés », vous disposez des droits d’accès, de rectification, d’effacement, d’opposition, de limitation et de portabilité de vos données. Vous pouvez retirer votre consentement à tout moment en contactant directement l’Agence / Le Réseau. Consultez le site https://cnil.fr/fr pour plus d’informations sur vos droits. Si vous estimez, après avoir contacté l'Agence / le Réseau, que vos droits « Informatique et Libertés » ne sont pas respectés, vous pouvez adresser une réclamation à la CNIL. Nous vous informons de l’existence de la liste d'opposition au démarchage téléphonique « Bloctel », sur laquelle vous pouvez vous inscrire ici : https://www.bloctel.gouv.fr Dans le cadre de la protection des Données personnelles, nous vous invitons à ne pas inscrire de Données sensibles dans le champ de saisie libre.
Ce site est protégé par reCAPTCHA, les Politiques de Confidentialité et les Conditions d'Utilisation de Google s'appliquent.